안녕하세요 건축학과 학생인데 도움을 받으려고 합니다! 패널에 들어갈 배치도 등을 요청하려 하는데 상담 가능할까요
상세 설명
[진행 과정] 견적요청후 규모와 작업량을 위해 구체적인 작업방향을 상담합니다. 원본파일이있는지/레퍼런스여부/일정/건축의경우 규모/2D디자인 경우 작업량 위의 내용을 상담후 일정, 가격을 협의하여 거래요청과 결제를 진행합니다. 거래결제후 본격적인 작업전 작업1차 시안을 보내어 해당방향성이 맞는지 3차까지 작업과정을 대략적으로 보내드립니다. 확인후 맞으면 바로 작업진행에 들어갑니다. 최종 작업물이 나오기전에 중간작업물을 보내드립니다. 최종 작업물 받으시고 무료수정 횟수는 3회까지입니다. [추천 대상] 건축관련 도면, 이미지가 필요하나 작업을 어떻게 해야하는지 모르시는분/스캔본이나 스케치 개략 치수만 있는 이미지도면을 캐드화 하고싶으신분/건축물 규모만 대략알고 치수가 없는 이미지를 도면화 하고싶으신분/ 팜플렛이나 홍보물에 간단한 건축3D이미지가 필요하신분/2D 작업물이 필요하신분 / 보고서나 홍보용 삽화가 필요하신분 [고수 정보] 5년넘게 건축설계 실무에 종사하며 7년정도 프리랜서를 겸업하며 캐드, 모델링, 렌더링, 삽화, 보고서 작업을 해왔습니다. 실무와 이미지 작업 모두 최적화되어있습니다. 디자인 전공 학업이수 경험으로 디자인관련 공모전 다수 참가 및 입상 경험이있으며 팜플렛, 포스터, 명함, 삽화 등 일러스트, 포토샵에 관련한 전반적인 작업경험이 많습니다. 이외에 디자인이 필요한 작업도 가능합니다. [상품 정보] 가격은 최소 30,000원부터 진행됩니다. 건축관련은 10평이하는 2D/3D 별 측정된 가격이 따로 있습니다. 그 이상의 규모는 평당 추가비용이 발생하며 상담후 정확한 견적 내드립니다. 2D/이미지 작업은 작업량에따라서 가격이 상이하여 상담요청 부탁드립니다. *예시를 보내주시면 작업이 훨씬 수월합니다. (손으로 대충 스케치나 색감, 전체적인 느낌만 알수있는 사진도 괜찮습니다) *원본파일이 있을경우 작업이 빠릅니다.(없어도 무관합니다) *최종작업물은 판매자의 포트폴리오로 사용될수있습니다. 원치않을경우 미리 말해주세요!
가격
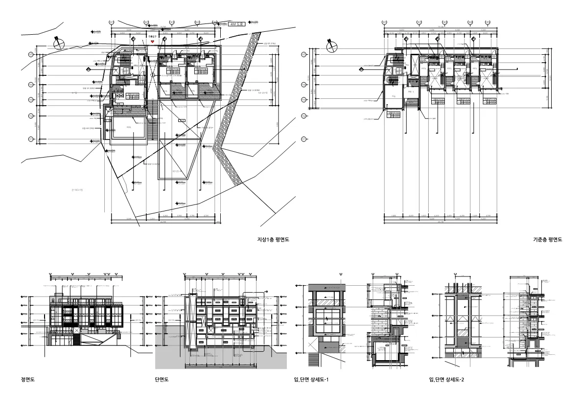
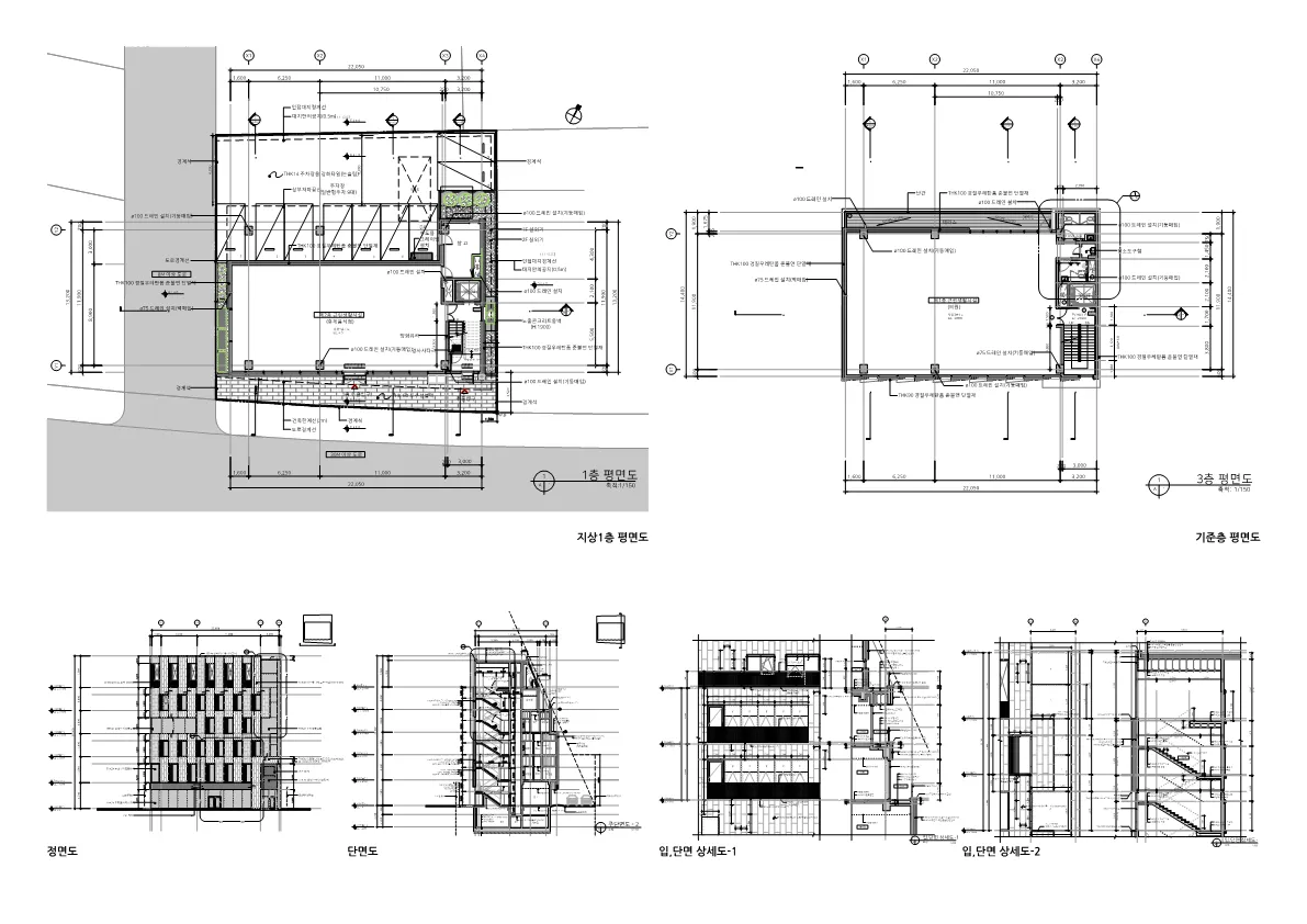
2D도면작업 스케치도면/스캔도면 캐드파일화/평수만 아는 이미지도면/ 공간실측기반 가구배치 해드립니다
스케치업, 라이노 작업해드립니다. 기본 모델링만 필요하실때입니다 (투시도, 조감도, 아이소작업이 안된)/실측된 방에 가구배치/간단한 인테리어 평수에 따라 추가금 붙습니다.
3D 내부, 외부 투시도 작업물 스케치업파일 제공 (추가금 15,000원) 작업 -> 모델링, 렌더링, 포토샵 건축/인테리어/간판 등 평수에 따른 추가금액 있음
작업량에 따라 추가금액 있음 팜플렛, 포스터, 보고서삽화, 책자, 캐릭터, 이미지합성, 스케치 일러스트화 등
고수 정보

질문답변
문의
[상품] 안녕하세요 건축학과 학생인데 도움을 받으려고 합니다! 패널에 들어갈 배치도 등을 요청하려 하는데 상담 가능할까요
[상품] 안녕하세요! 건축학과 학생인데 과제물 요청 좀 드릴려는데 상담 가능할까요!
안녕하세요! 건축학과 학생인데 과제물 요청 좀 드릴려는데 상담 가능할까요!
네 가능합니다 어떤 과제인지, 일정 전화로 말씀해주셔도 가능하십니다
[상품] 안녕하세요 혹시 아이소메트릭 금액이 어느정도일까요?
안녕하세요 혹시 아이소메트릭 금액이 어느정도일까요?
10평이하로는 균일하게 4장당 15만원입니다.
[상품] 선생님 혹시 근린시설 옥상까지 총 5층 건물입니다 건물 외각은 80프로정도 완성됐구 손봐야하는곳들만 보면됍니다 기간이 어느정도 걸릴까요?
선생님 혹시 근린시설 옥상까지 총 5층 건물입니다 건물 외각은 80프로정도 완성됐구 손봐야하는곳들만 보면됍니다 기간이 어느정도 걸릴까요?
네 안녕하세요. 문의주신 작업이 도면작업이나 모델링을 말씀하시는걸까요?
[상품] 안녕하세요? 아우디, 벤츠 엠블럼을 아크릴 제작하려고 하는데, 캐드 입체 도면이 필요하다고 합니다. 작업이 가능하신지요?
안녕하세요? 아우디, 벤츠 엠블럼을 아크릴 제작하려고 하는데, 캐드 입체 도면이 필요하다고 합니다. 작업이 가능하신지요?
취소 및 환불 규정
건축설계2D/3D도면,모델링,조감도,투시도,아이소메트릭,팜플렛,일러스트,삽화 작업합니다.
최대 1,000만 원까지 보상