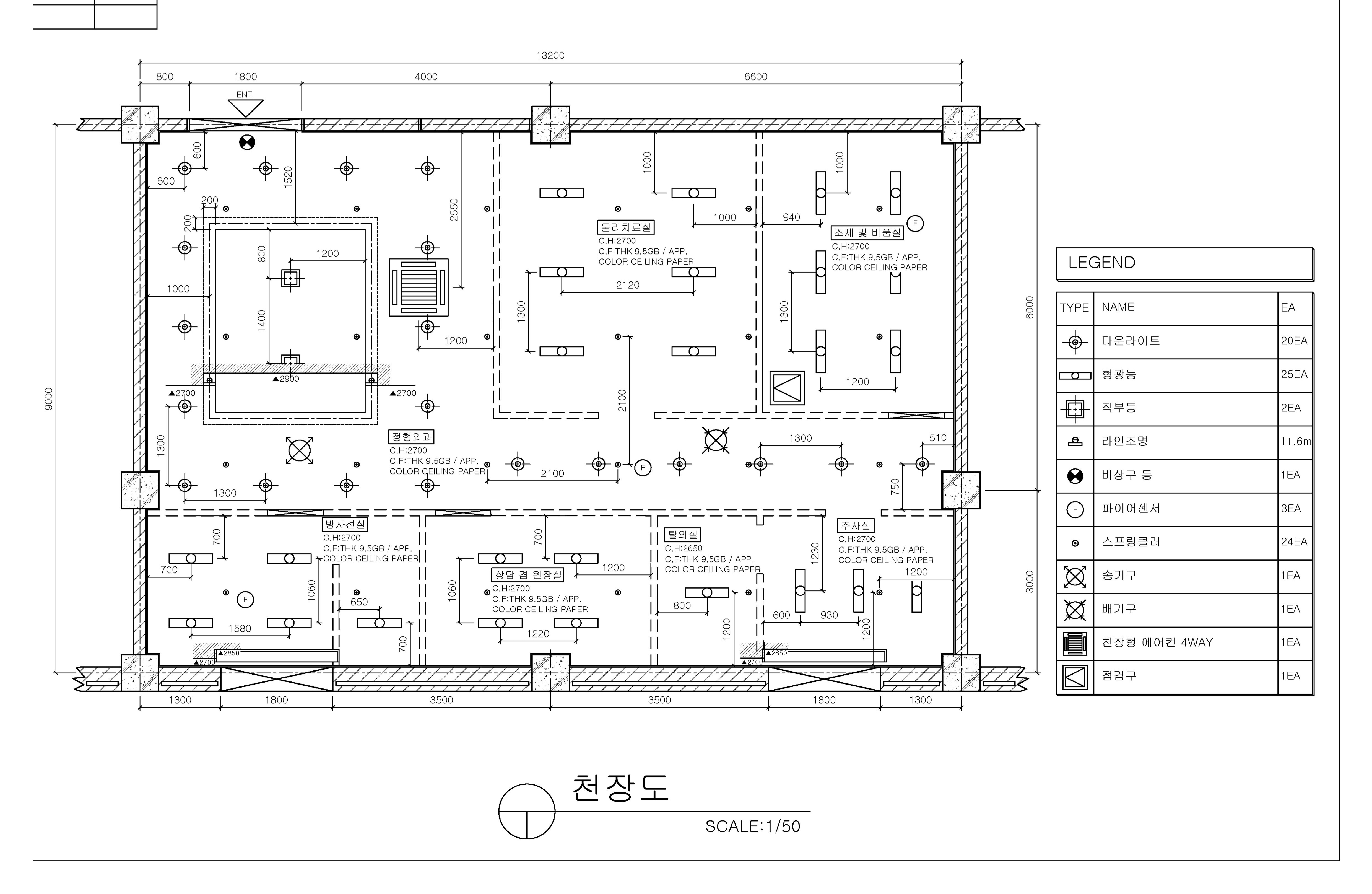
오토캐드를 활용하여 취미삼아 작도한 정형외과 평면도 및 천장도


데용
인테리어 도면(캐드/3D)
오토캐드와 스케치업 포트폴리오
0196스케치업과 브이레이 모델링
02
따뜻한 감성으로 완성한 숙소 브랜드 홈페이지
1311요가 및 필라테스 홈페이지 제작
0254펜션 숙박 홈페이지 제작
0130인물 / 배경 일러스트
0138일러스트 포스터
081주거공간 리모델링 3D 작업
063회사소개브로셔
0130상품제안서
0125펀드운용보고서
022










