건축과 인테리어는 단순한 공간을 넘어, 사용자의 삶을 담아내는 예술이자 과학입니다. 30년 이상 건축설계, 인테리어 공사, 디자인 기본설계, 실시설계, 공사설계 분야에서 쌓아온 깊이 있는 경험과 노하우로, 고객님의 상상을 현실로 만드는 가장 정밀하고 완벽한 도면을 제공합니다. 서울, 경기 전역은 물론, 전국 어디든 비대면으로 소통하며 최적의 솔루션을 제안해 드립니다. 장당 3,3000원 이상의 합리적인 비용으로, 협의 가능한 작업 기간 내에 최고의 결과물을 약속드립니다.
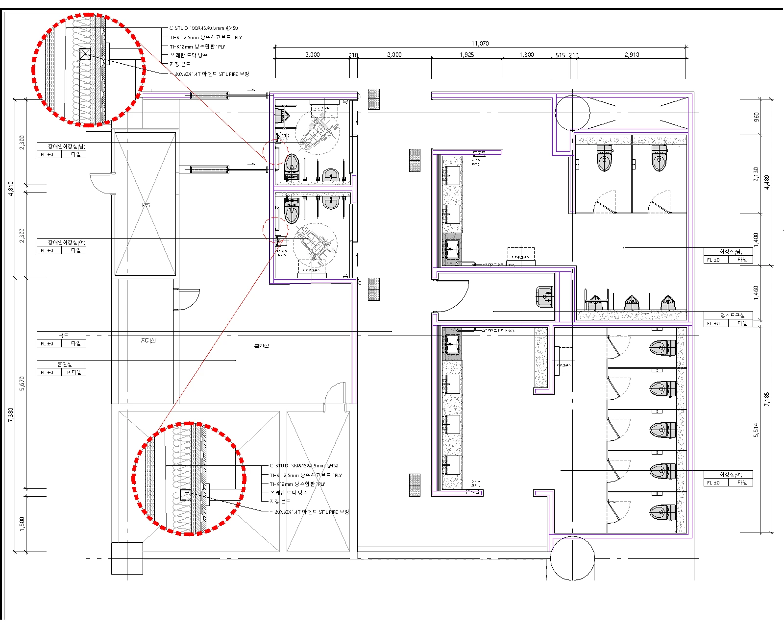
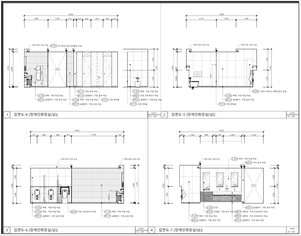
공간의 첫인상을 결정하는 전체 레이아웃부터 세부 동선까지, 모든 요소는 정밀한 도면 위에서 생명을 얻습니다. 장애인 화장실처럼 법규 준수와 편의성이 중요한 공간도 놓치지 않죠. 전체 평면도에서 공간 흐름을 파악하고, 각 실의 입면도를 통해 마감재, 설비, 가구 배치까지 세밀하게 계획하여 기능성과 심미성을 모두 갖춘 공간을 구현합니다. 30년 경력의 섬세함이 바로 이런 차이를 만듭니다.

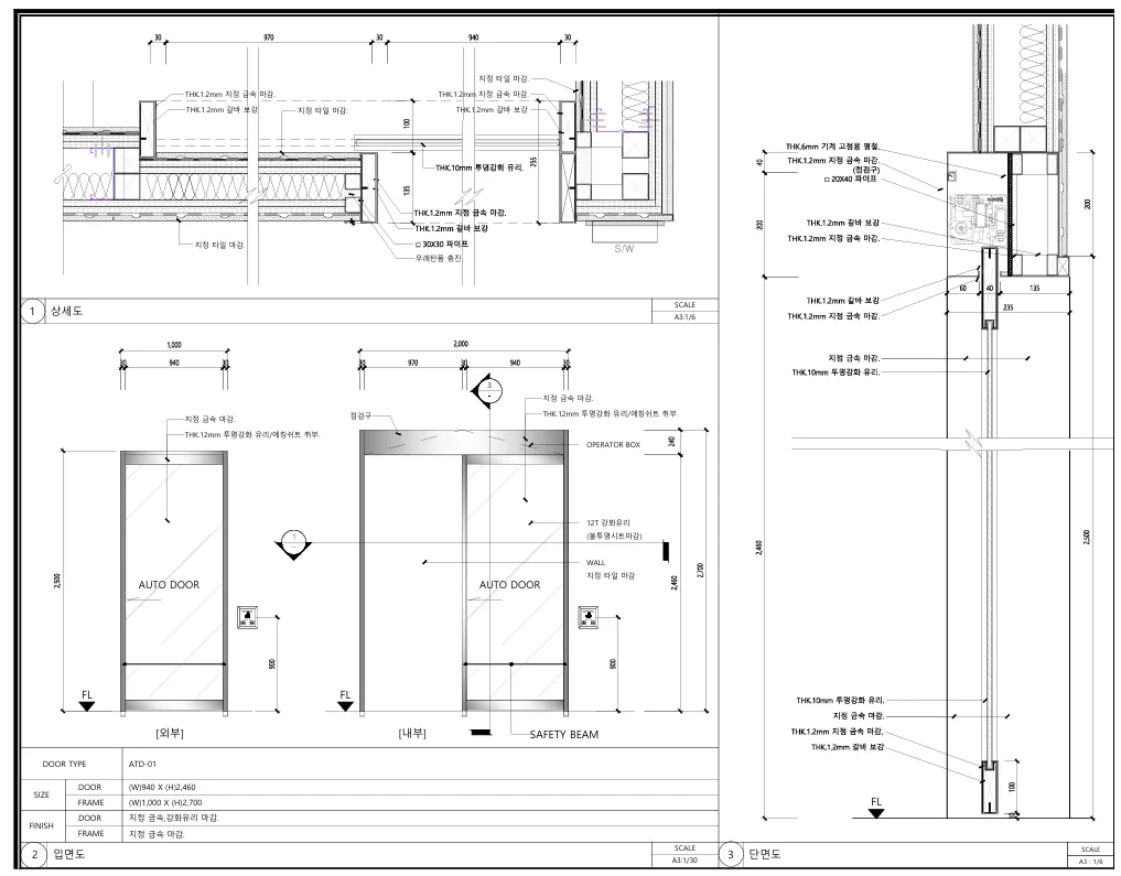
건축물의 완성도는 보이지 않는 디테일에서 결정됩니다. 천장의 간접 조명 루버, 스크린 루버 설치 상세, 자동문의 구조와 작동 방식 등 정밀한 도면은 시공 오차를 최소화하고 최종 품질을 보장하는 핵심 요소입니다. 재료 특성 이해와 견고한 결합 방식에 대한 깊은 지식 없이는 상세 도면을 완성할 수 없죠. 30년 현장 경험으로 축적된 기술력으로, 복잡한 디테일도 명확하게 표현하여 완벽한 시공을 가능하게 합니다.
건축물의 단면도는 건물의 수직적 관계와 구조적 안정성을 한눈에 보여주는 중요한 자료입니다. 여러 층 복합 공간의 경우, 각 층 높이, 계단 경사, 천장고, 설비 배관 위치까지 정확하게 표현되어야 하죠. 이는 건물의 전체 균형과 안전 확보에 필수적이며, 리모델링이나 증축 시 기존 구조와의 조화를 고려하는 데 결정적인 역할을 합니다. 단면도를 통해 건물의 숨겨진 부분까지 완벽하게 파악하고, 구조적 안정성과 기능적 효율성을 동시에 만족시키는 설계를 제공합니다.
고객님의 소중한 공간을 위한 설계는 단순한 선 긋기가 아닙니다. 그것은 미래의 삶을 그려내고 전문성이 집약된 결과물이죠. 30년 이상의 경험을 바탕으로, 고객님의 비전을 가장 정확하고 효율적인 도면으로 구현해 드릴 준비가 되어 있습니다. 복잡한 요구사항도 명쾌하게 풀어내고, 시공 현장에서 빛을 발하는 실용적인 도면을 통해 프로젝트가 성공적으로 완성될 수 있도록 최선을 다하겠습니다. 지금 바로 문의하시어, 당신의 꿈을 현실로 만들 첫걸음을 함께 시작해 보세요.
아파트 커뮤니티및 세대 작업 관련 자료
0181커뮤니티 시설내 공용화장실 단면 상세도
05
따뜻한 감성으로 완성한 숙소 브랜드 홈페이지
1311요가 및 필라테스 홈페이지 제작
0254펜션 숙박 홈페이지 제작
0130인물 / 배경 일러스트
0138일러스트 포스터
081주거공간 리모델링 3D 작업
063회사소개브로셔
0130상품제안서
0125펀드운용보고서
022









