
쉼채공작소
김동환
숨고페이 가능디케이디자인코퍼레이션 김대원
Give N Take
숨고페이 가능김영승
Oort design studio
숨고페이 가능고동범
숨고페이 가능Kan
남현욱
숨고페이 가능
부산 북구 지역
인테리어 도면(캐드/3D) 고수 포트폴리오
인테리어 도면(캐드/3D)
예상견적은?
고수에게 묻다
고수님들께 자주 묻는 질문과 답변을 살펴보세요
인테리어도면 의뢰하려면 어떻게 하나요?
인테리어도면 대행은 전문 업체나 숨고와 같은 매칭 플랫폼을 통해 의뢰할 수 있습니다.
인테리어도면은 인테리어 설계의 기본이 되는 가장 중요한 자료이기 때문에 체계적이고 전문적인 실력을 갖춘 전문업체를 선택하는 것이 중요합니다. 인터넷을 통해 다양한 업체들의 포트폴리오를 확인하고 어떤 도면 종류를 의뢰할지를 정한 후 상담을 받는 것이 좋습니다. 이후 공간의 정확한 규모와 구조 파악을 위해 현장 실측 자료, 현장 사진, 원하는 디자인 콘셉트 등을 준비합니다. 실측 자료는 단순히 가로, 세로, 높이가 아닌 내부 기둥, 창문 사이즈 등 세부적인 수치 측정이 필요합니다. 현장 사진은 입구에서 각 벽면을 바라보는 사진, 배관, 전기 분전함 위치 등 다양한 사진을 찍는 것이 좋습니다. 인테리어도면 제작 견적에 영향을 줄 수 있기 때문입니다.
캐드 대행, 3D 외주 비용은 얼마인가요?
숨고 내에서 거래되는 캐드 대행, 인테리어 도면 평균 비용은 건당 430,900원입니다. 최저 비용은 228,700원, 최고 비용은 788,800원입니다.
캐드는 2D와 3D로 구분할 수 있습니다. 2D는 평면도로 공간의 배치를 구상하기에 좋습니다. 3D 인테리어도면은 투시도를 말하며, 건물의 내부, 외관을 원근법에 의해 3차원으로 표현한 그림입니다. 시점의 위치를 여러 가지로 바꾸어 건물을 여러 각도에서 본 경우를 그릴 수 있어 실제 완성되었을 때의 분위기를 표현할 수 있습니다.
인테리어도면 종류에는 무엇이 있나요?
인테리어의 기본 척도이며, 원활한 시공 진행을 위해 가장 중요한 요소인 인테리어도면은 여러 종류가 있습니다.
1. 배치도
배치도는 부지 내의 건축물과 도로의 위치 관계를 나타내는 도면으로 도로, 이웃 건물과의 관계, 부지의 고저, 주차 동선 등을 확인할 수 있습니다.
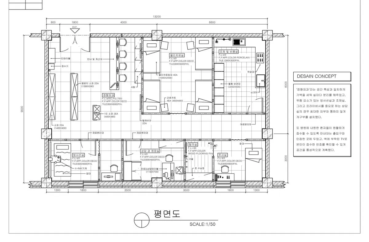
2. 평면도
평면도는 바닥으로부터 1.2~1.5m 높이에서, 건축물을 수평으로 잘라 위에서 아래로 내려다보는 모습으로 나타낸 도면입니다. 각 공간의 위치와 넓이, 동선의 흐름을 확인할 수 있어 공간 계획의 기본이 되는 도면입니다.
3. 단면도
단면도는 건축물을 수직으로 절단하여 절단면에 보이는 것을 표현한 도면입니다. 건물의 기초와 단열재 두께, 높이 등을 확인하기에 유용합니다.
4. 입면도
입면도는 건축물의 외관을 그린 도면으로 건물의 높이, 마감재, 각 층의 비례 등을 알 수 있는 도면입니다.
5. 투시도
투시도는 설계한 대로 완성된 건축물의 예상 모습을 입체적으로 그린 도면입니다. 실물과 비슷하게 제작되며, 일반 2D 도면보다 이미지 전달이 쉬워 디자이너의 의도와 아이디어를 전달하기에 효과적인 도면입니다.
6. 조감도
조감도는 새의 눈높이에서 바라본 건물이라는 의미로, 공중에서 건축물을 비스듬히 내려다보았을 때의 모양을 표현한 도면입니다. 건축물 전체를 볼 수 있게 표현하므로 관광안내도나 조경공사계획 등에 사용합니다.
숨고에서 딱 맞는 고수를 고용하세요
한번에 쉽게
발품 팔 필요없이 한 번 요청으로 딱 맞는 고수를 찾아드려요.
한 눈에 비교
여러 고수의 프로필, 견적, 고객리뷰를 쉽게 비교하고 선택하세요.
안전한 거래
숨고페이로 안심하고 서비스 대금을 결제하세요.


