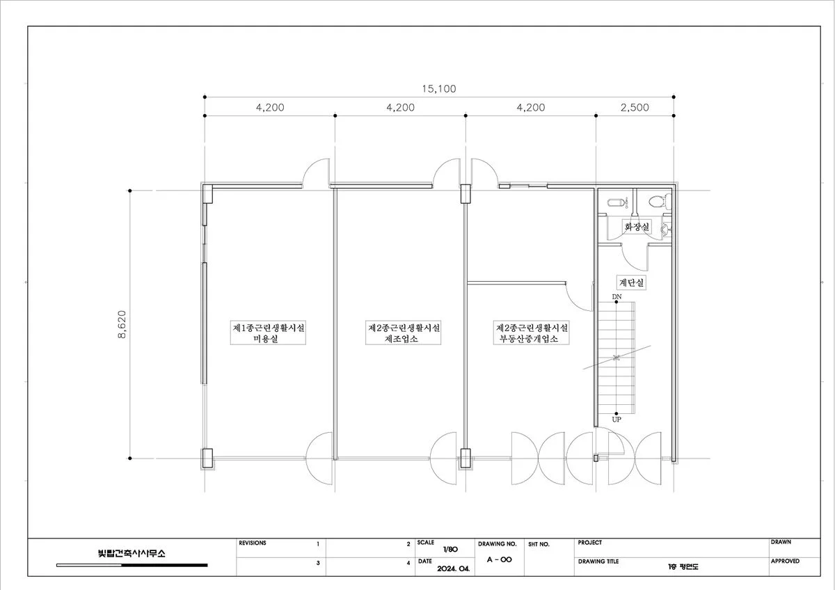
경기도 광주시 28평 (92m) 1층 단독주택을 사무소로 용도변경하는 도면 작업 하려고 합니다. 기존 캐드 도면 있구요. 특별히 공사를 해야할 부분은 없을 것 같긴 한데.. 기존 도면 그대로 올려서 신청하면 안될 것 같아서요..
상세 설명
[진행 과정]용도변경 건축도면 위주로 진행, 상담후 진행 [추천 대상]건축도면 연계한 용도변경, 건축사 직인 등 필요한 건축도면 [고수 정보]건축사, 건축사사무소운영, 건축경력(2003~현재), 서울소재 4년대졸 [상품 정보] 기존도면 있을 경우 30평기준 층당 30만원 : 직인 포함 가격임 : 작성 기간 1일 * 건축물 대장 등재를 위한 현황도면 및 용도변경 표시변경 등은 건축사 직인 또는 건축사사무소에서 도면 작성 가능함을 알려드립니다.. 실측 후 작성 : 30평 기준 층당 50만원 (다수층 있을경우 가격조정), 용도변경 대상 인 경우 추가 부담합니다. 도면 없을 경우 실측 하여 작성 가능 (실측후 1~2 일 소요 여러층 일경우 협의) * 주택, 다가구 주택, 다세대 주택, 중소형 빌딩 용도변경, 표시변경, 도면작성 비고) 내부 인테리어 도면 있을 시 건축 도면에 반영 해 드립니다. 내부 칸막이벽( 조적 설치, 석고 보드 간막이 벽 등 도면 그립니다. 인테리어 공사 협체와 협의 후 진행 가능 참고) 다가구 주택 3층 1동 약 100~150만원 도면 작성 및 직인 가능 비고) *위반 사항 포함된 현황 건물은 행정 절차가 불가 합니다. *대형 건물, 주상복합등 큰 건물의 진행은 어려울 수 있습니다. * 주소지 및 진행 메모 남겨주시면 진행 여부 알려드립니다. * 단독 주택의 구조 변경으로 인한 용도 변경은 진행이 어려울 수 있습니다. * 소방 및 구조로 인한 도면 또는 관련 사항은 별도 외주입니다.
가격
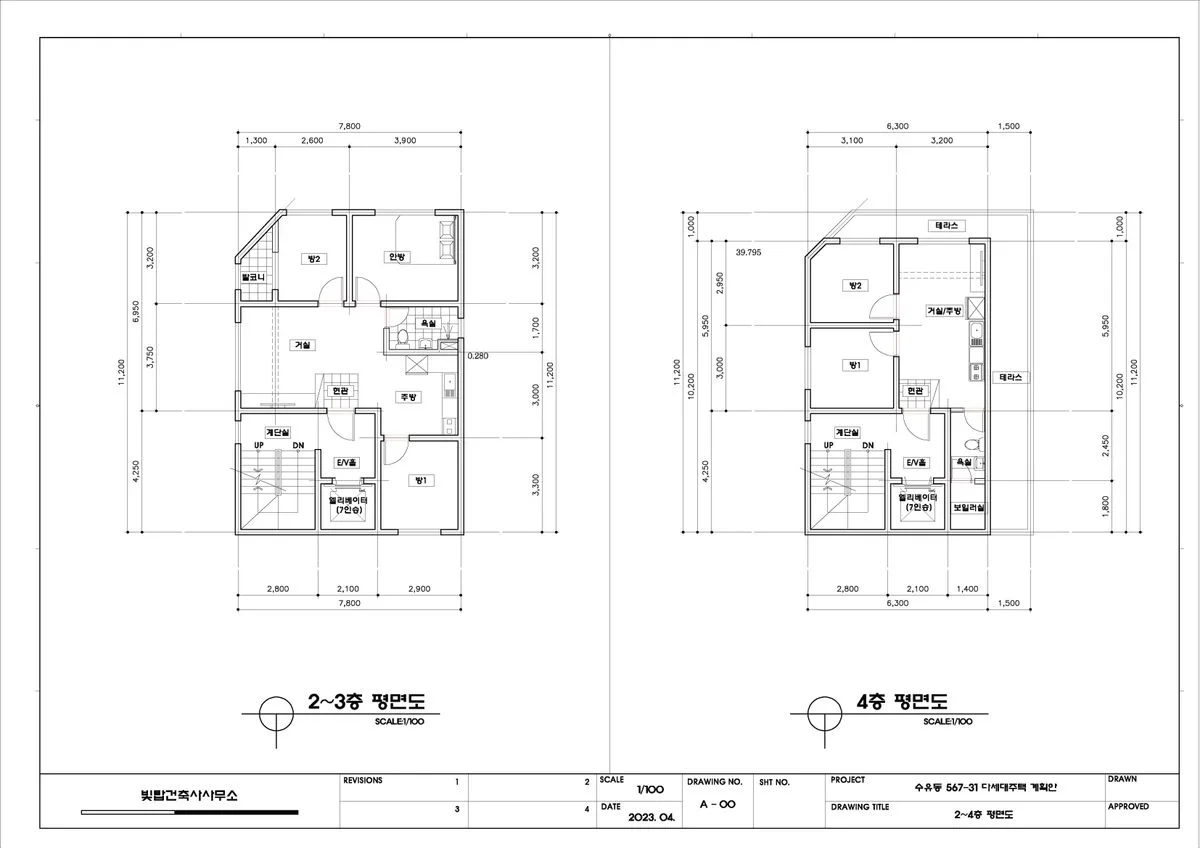
연면적 30평 기준 건축사 직인 가능 실측후 작성가능 용도변경 진행은 추가부담 주택 동별로 도면 작성가능
고수 정보

질문답변
문의
[상품] 경기도 광주시 28평 (92m) 1층 단독주택을 사무소로 용도변경하는 도면 작업 하려고 합니다. 기존 캐드 도면 있구요. 특별히 공사를 해야할 부분은 없을 것 같긴 한데.. 기존 도면 그대로 올려서 신청하면 안될 것 같아서요..
[상품] 안녕하세요. 1개 호실에 대해서 건축 평면도 요청 드려고 하는데, 크기는 28.8m2이고 최대한 빠르게 작업 했으면 합니다. 비용과 가능하신 시간, 소요일 등 일정 확인 요청 드립니다.
안녕하세요. 1개 호실에 대해서 건축 평면도 요청 드려고 하는데, 크기는 28.8m2이고 최대한 빠르게 작업 했으면 합니다. 비용과 가능하신 시간, 소요일 등 일정 확인 요청 드립니다.
[상품] 1종근린 > 2종근린 표시 변경을 위해 방화창 설치 하고자 합니다. 후에 도면 반영이 필요하다고 하는데, 이를 위한 비용은 어떨까요
1종근린 > 2종근린 표시 변경을 위해 방화창 설치 하고자 합니다. 후에 도면 반영이 필요하다고 하는데, 이를 위한 비용은 어떨까요
[상품] 건축물 용도변경 가능여부 및 금액 문의드립니다. *대상: 경기 부천시 원미구 심곡동 368-17, 1층 일반음식점 -> 자동차관련시설 (수리점, 검사장) 으로 변경희망.
건축물 용도변경 가능여부 및 금액 문의드립니다. *대상: 경기 부천시 원미구 심곡동 368-17, 1층 일반음식점 -> 자동차관련시설 (수리점, 검사장) 으로 변경희망.
[상품] 전화로 연락 주세요 01037889938 입니다
전화로 연락 주세요 01037889938 입니다
취소 및 환불 규정
건축사사무소, 용도변경, 건축도면, 실측도면, 건축설계, 건축사 직인, 현황도면
최대 1,000만 원까지 보상