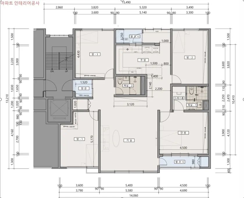
안녕하세요. 대중적인 트랜드를 합리적인 견적가로 제시하여 인테리어에 대한 고객님의 만족감을 높이기 위해 최선을 다하는 네비에슈 디자인 입니다. 인테리어는 고객님의 취향과 저희의 전문성이 만나 탄생한 결과물입니다. 매일 머물고 싶은 집, 여러분도 꿈꾸시나요? 저희와 함께라면 현실이 됩니다. 서초구 방배동 서리풀힐스 46평 아파트는 가족의 편안함과 효율적인 수납을 최우선으로 고려한 공간으로 재탄생했습니다. 8주간의 섬세한 작업을 통해 '전체 바닥 난방 시공'과 '붙박이장 일체' 디자인을 적용, 따뜻하고 정돈된 프리미엄 주거 공간을 완성했습니다.
46평의 넓은 면적을 최대한 활용하여 각 공간의 기능성을 높이는 데 중점을 두었습니다. 특히 해당 아파트 고질적인 난방 누수 해결을 위하여 전체 바닥 철거후 난방 및 수도 배관을 새로 시공 하였으며 안방에만 설치 되어 있던 온도 조절기를 거실 및 각방으로 나누어 가족 구성원이 본인 방 온도조절을 손쉽게 하도록 하였습니다.

집의 첫인상을 결정하는 현관과 복도는 깔끔함과 실용성을 동시에 잡았습니다. 불필요한 요소를 최소화하고, 은은한 조명과 간결한 디자인의 붙박이 수납장을 배치하여 정돈된 분위기를 연출했습니다. 집으로 들어서는 순간부터 편안함을 느낄 수 있도록 세심하게 배려했습니다. 벽면 전체를 현관장 색상인 포그그레이로 동일하게 맞췄습니다.

가족의 소중한 시간을 함께하는 거실은 탁 트인 개방감과 아늑함을 동시에 선사합니다. 넓은 창을 통해 들어오는 자연광이 공간을 더욱 환하게 밝히고, 전체 바닥 난방 시공으로 겨울에도 따뜻하고 쾌적한 환경을 유지합니다. 미니멀한 디자인과 부드러운 색감으로 편안한 휴식을 위한 최적의 공간으로 재탄생했습니다.


빌트인 냉장고와 수납장을 일체감 있게 배치하여 깔끔하고 모던한 분위기를 완성했습니다.


욕실은 하루의 피로를 씻어내는 프라이빗한 공간인 만큼, 고급스러움과 기능성을 겸비했습니다. 베이지 톤의 타일과 간접 조명은 따뜻하고 아늑한 분위기를 연출하며, 세련된 디자인의 세면대와 위생 도기는 호텔 같은 편안함을 제공합니다. 샤워 공간을 분리하여 더욱 쾌적하게 사용할 수 있도록 배려했습니다.



서초구 방배동 서리풀힐스 46평 아파트 인테리어는 단순한 리모델링을 넘어 해당 아파트의 고질적인 문제인 바닥 난방 누수를 해결함과 동시에 난방 조절기 독립 기능을 추가 하여 따뜻함과 편의성을 높혔으며 붙박이장 일체 디자인으로 4인 가족 수납공간을 넉넉하게 하였습니다. 8주간의 노력 끝에 고객님의 감탄과 큰만족감의 칭찬이 저희에게 가장 큰 보람이었던 현장이였습니다.

상현마을현대성우1차 32평
019용인시 기흥구 연원마을 현대 32평
023중구 신당동 남산타운
027강서구 방화동 한숲대림 24평
018분당구 이매동 이매촌삼환 32평
030송파구 장지동 위례 송파더센트레 22평
05용인시 수지구 죽전동 빌라 38평
06성남시 수정구 위례센트럴자이 25평 B타입
122영등포구 여의도동 여의도 시범아파트 47평
010- 더보기
구축 화장실 바닥,실오방,샤워부스 벽면 작업
57.6천외벽 크랙 보수 및 탄성퍼티로 내구성강화 시공입니다
01.2천식당 샤시 보수·문 에나멜 도장 및 천장 재도장 시공
0654상업공간·다락창고 크랙 보수 및 곰팡이 제거 후 도장
0494망원동 피끄 인테리어 포트폴리오
0379부천 네일샵
2438한국이엠건설 ,주택보수 인테리어 페인트
0341부산동래구 사직하늘채리센티아 줄눈시공
0855연산동 유림드림빌 욕실줄눈시공
0202

















