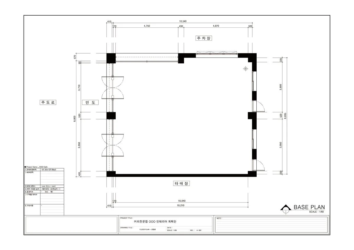
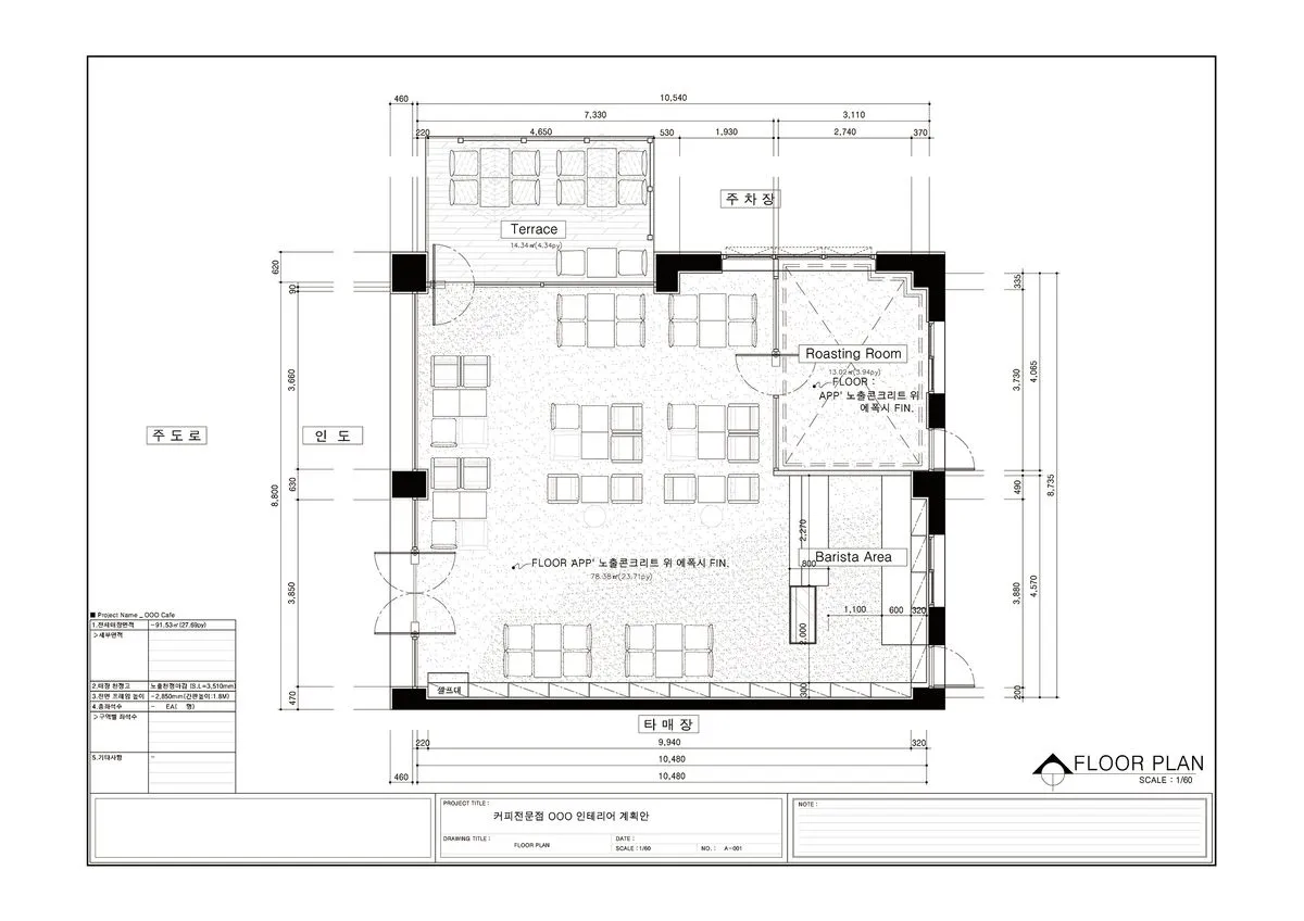
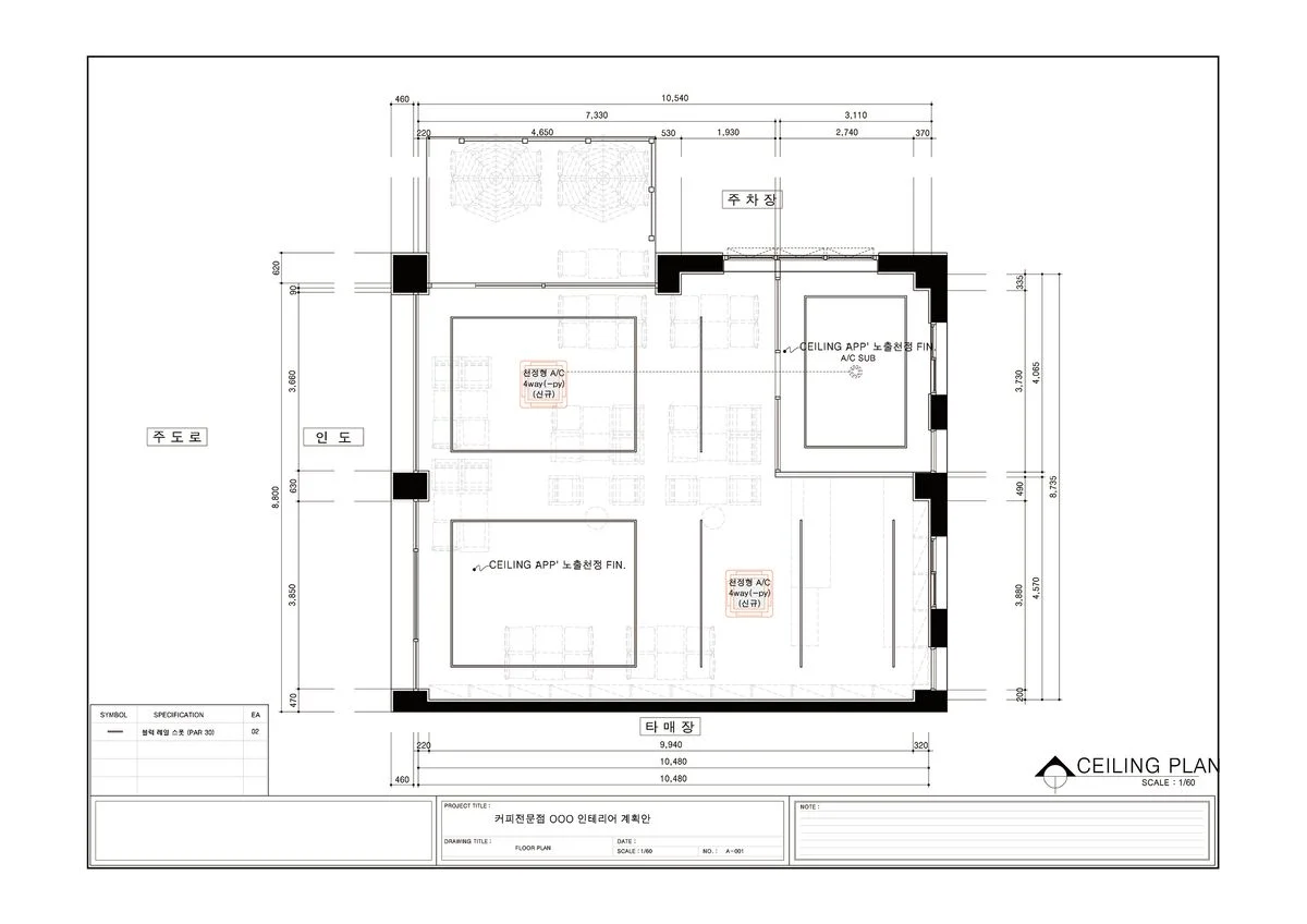
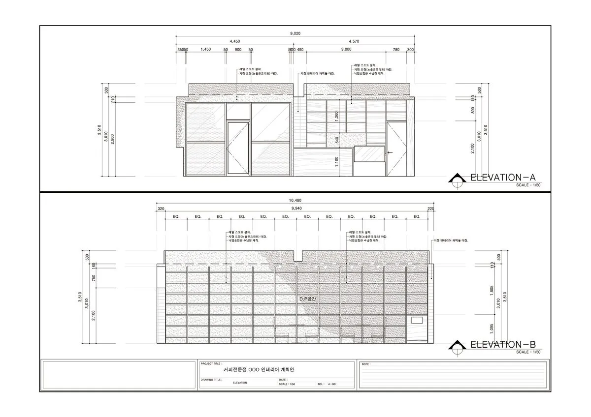
실측 사이즈적힌 수기 이미지 전달받고, 대략적인 평면도 레이아웃 작업 후 협의 진행. 픽스 된 평면도 기준으로 전체적인 디자인 컨셉 느낌 전달받아 천정도,입면도 작업진행하여 완료.






AP DESIGN
인테리어 도면(캐드/3D)
한의원 인테리어 계획안
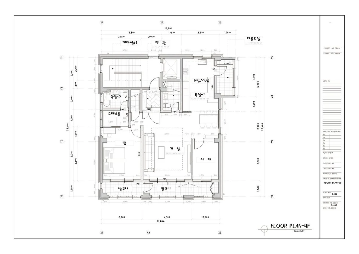
020아파트 인테리어 계획안(2D+3D)
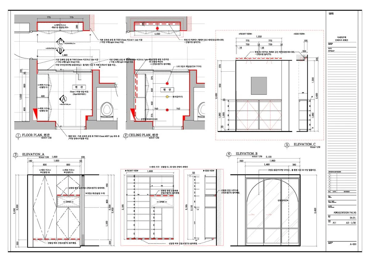
049주거공간 상세도면(시공에 필요한 도면)
021주거공간 3D 작업
098쇼핑몰 내 음식점(인샵) 도면작업
011호텔 평면도 작업
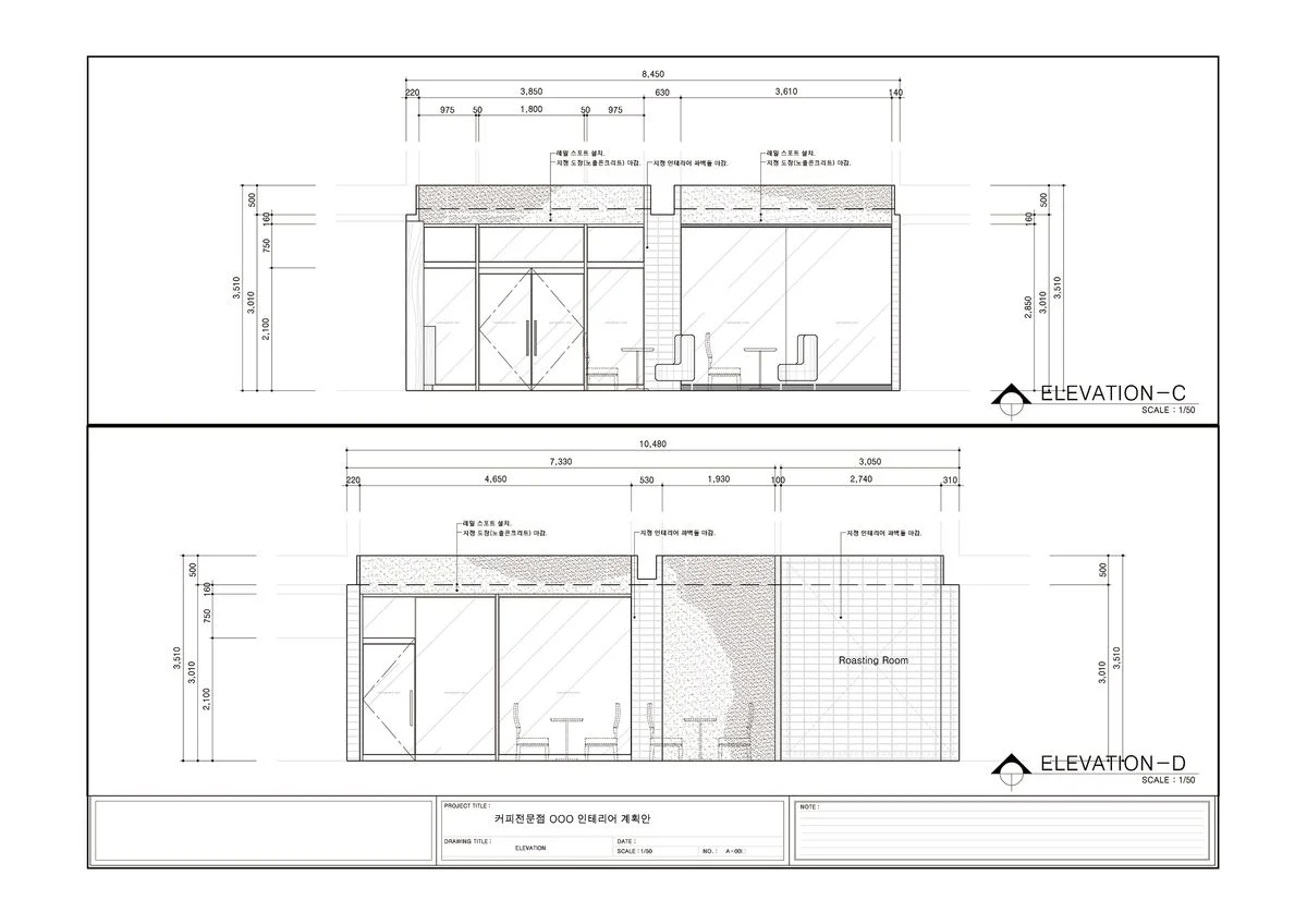
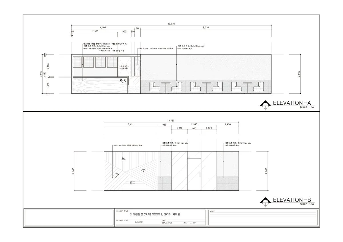
02.6천소형 카페 인테리어 설계
01.6천신축 주택 내부 인테리어 공사
043도넛 프랜차이즈 인테리어 컨셉 디자인 의뢰
0485- 더보기
따뜻한 감성으로 완성한 숙소 브랜드 홈페이지
1311요가 및 필라테스 홈페이지 제작
0254펜션 숙박 홈페이지 제작
0130인물 / 배경 일러스트
0139일러스트 포스터
081주거공간 리모델링 3D 작업
063회사소개브로셔
0130상품제안서
0125펀드운용보고서
022

















