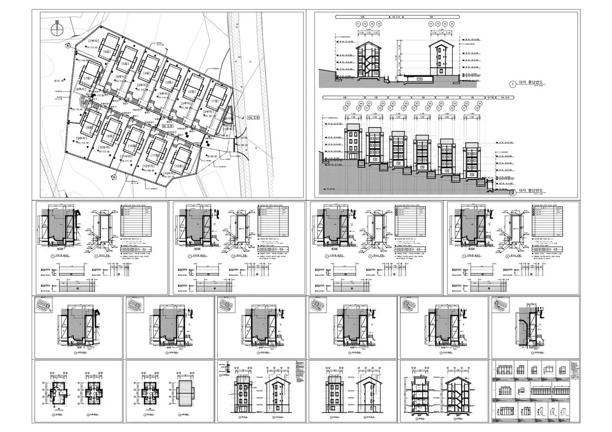
양주의 타운하우스 설계작업입니다. 스케치업으로 기준층 아이서메트릭 작업과 인허가 도면 작성내용입니다.




준아키
인테리어 도면(캐드/3D)
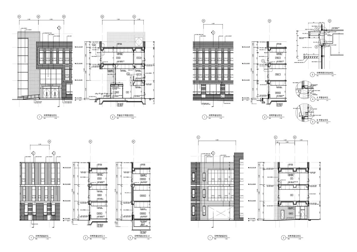
건축 도면 작성
09근생 및 다가구주택 설계
01스케치업 모델링 작업
04
따뜻한 감성으로 완성한 숙소 브랜드 홈페이지
1392요가 및 필라테스 홈페이지 제작
0325펜션 숙박 홈페이지 제작
0165인물 / 배경 일러스트
0173일러스트 포스터
0102주거공간 리모델링 3D 작업
084회사소개브로셔
0154상품제안서
0170펀드운용보고서
030











